Un accompagnement personnalisé avec notre bureau d'études en serrurerie à Guérande
Notre expert réalise vos plans pour vos besoins en serrurerie métallerie.
Un partenariat de confiance pour vos objets en fer !
Notre bureau d'étude spécialisé en métallerie vous accompagne tout au long de votre projet
Christian Réauté Bureau d'études en agencement travaille depuis de nombreuses années avec des artisans, notamment des ferronniers et serruriers, mais également des menuisiers
pour créer vos pièces uniques.
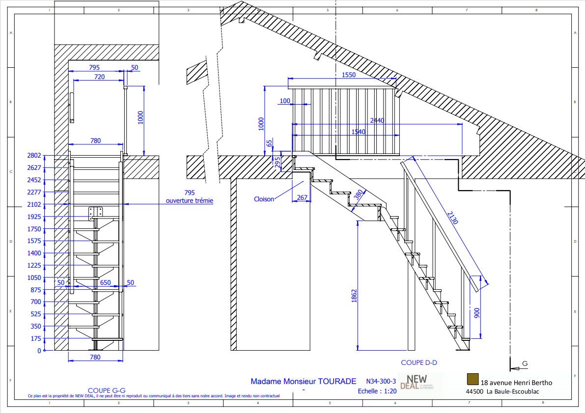
Notre bureau d’études en serrurerie travaille pour la conception de vos divers projets en métallerie, qu’il s’agisse d’escaliers, de portes, de portails ou d'agencement.
Notre équipement et notre savoir-faire nous permettent de répondre aux demandes les plus exigeantes en respectant vos délais et vos exigences de qualité.
De l'esquisse à l'exécution du projet !
Un bureau études et des ferronniers, une équipe compétente pour une réalisation parfaite
Vous avez un projet de création de serrures ou d’objets en fer ?
Notre bureau d’études étudie votre projet et réalise une conception 3D de tous types d’ouvrages métalliques : rampes d’escalier, garde-corps, grilles de défense, portes et portails, ossatures métalliques… Et ce, qu’importe votre localité en France.
L’étude en 3D est devenue un outil performant au service des artisans et des entreprises.
La modélisation en 3D des escaliers et leur mise en situation permettent dans un premier temps au client de bien visualiser le produit et d’en valider le design.
Quelle que soit la taille de votre projet, nous élaborons des documents de qualité et proposons des rendus photoréalistes.
Notre bureau d’études dans la serrurerie établit une étude approfondie et une prémodélisation
de vos travaux.
Après validation, les limons et marches droites et balancées élaborés avec le module tôlerie sont convertis individuellement en fichiers DWG pour le lancement en fabrication. Puis la mise à plat des marches pliées et la découpe laser avec tous les usinages associés ont lieu.
Pour une réalisation parfaite selon votre besoin !
Bureau d'études et serrurerie, entre savoir-faire manuel et compétences numériques !
Agencement de vos magasins
Agencement de vos locaux
Création de votre banque d'accueil
Un bureau d'études à votre disposition pour augmenter votre potentiel
Besoin d'un bureau d'études en serrurerie et ferronnerie ?
Étude de serrurerie
À la pointe de la technologie !
Nous possédons des licences professionnelles de logiciels pour une exploration complète
Parce que des images valent plus que des mots !







